Réaménagement des espaces publics de la traversée, Montbazin 34
- type de projet
- ESPACES PUBLICS
- lieu
- Montbazin, Hérault
- maître d'ouvrage
- Mairie de MONTBAZIN 34 560 MONTBAZIN T : 04 67 78 72 02 F : 04 67 78 61 65 mairie.montbazin@wanadoo.fr
- programme
- Réaménagement des espaces publics de la traversée
- réalisation
- 2012 - 2015
- montant
- 2 400 000 € HT
- mission
- Mission MOP Complète : Architecte (mandataire ) Paysagiste - BET VRD
- surface
- 10 500 m2
Cécil’ Mermier en collaboration avec Vincent CHAPAL (Architecte) BET Seri (VRD)
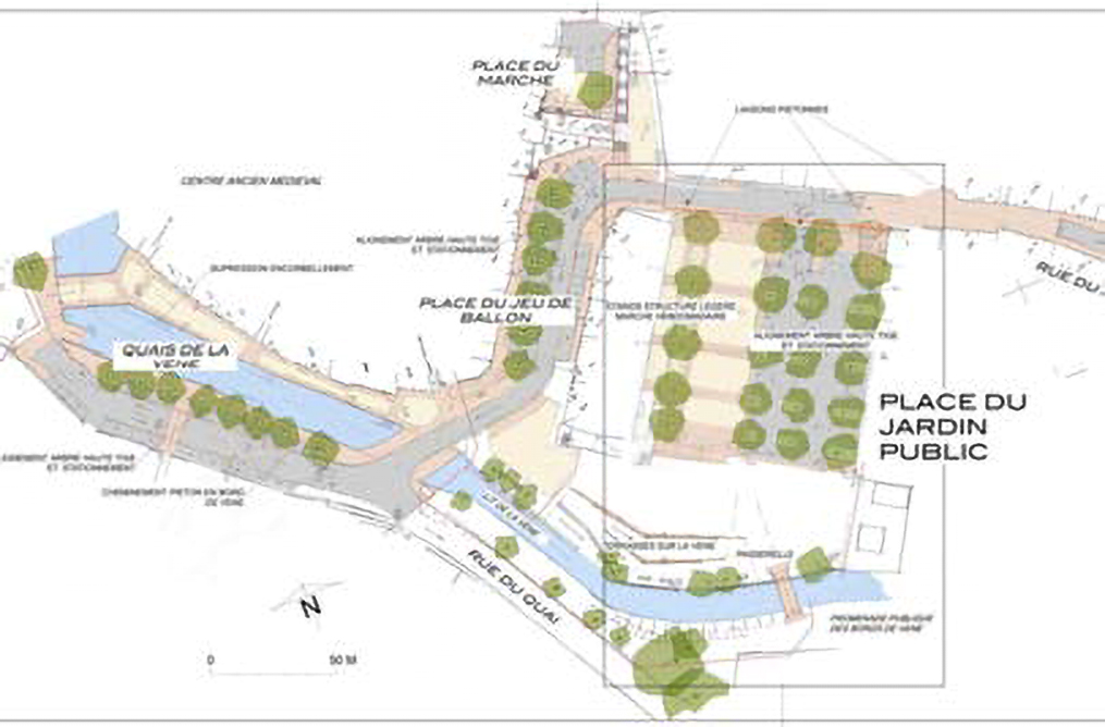
De limite du village, La Vène (la rivière qui traverse le territoire) est devenue la centralité du Montbazin d’aujourd’hui. Elle est le LIEU qui fait le LIEN entre les différentes parties de la commune. Nous considérons la Vène comme un veritable fil rouge sur lequel doit se gréffer des éléments/ espaces rassembleurs où se déroulera le «vivre ensemble» de Montbazin. L’aménagement de la traversée qu’elle est la typologie de rues, quais, places auront comme référence cet élément paysagé. La place du jardin public est dessiné autour d’une perspective ouvrant sur la Vène.



