Projets
Aménagement du centre bourg : place de la Fontaine et de la mairie, Saint-Martin-de-Londres 34
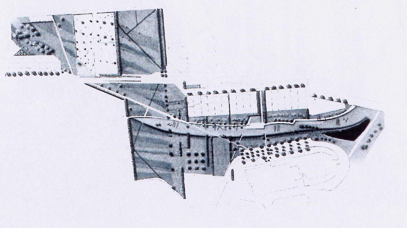
AMO Atelier des territoires 2015-2016 sur le thème des paysages périurbains Définir une stratégie d’aménagement pour le territoire de la Porte d’entrée Nord du département des Pyrénées-Orientales et de l’agglomération de Perpignan, Perpignan 66
Canal du Midi - Étude paysagère sur le site pilote du bief du Bagnas pour les replantations, Hérault 34
Cinisi : projet d’implantation d’éolienne, Sicile
Elaboration d’un schéma d’orientation pour l’aménagement de 3,3 ha à vocation d’habitat, Calce 66
Étude paysagère du Boulevard Nord-Est, Perpignan 66
Étude Paysagère et Patrimoniale en vue de la protection des Paysages du Lez du parc Méric au conseil régional, Montpellier 34
Étude Paysagère pour le Plan de circulation et de stationnement du site de St Etienne d’Issenssac dans le Grand Site de France « Gorges de l’Hérault », Brissac 34
Étude préalable ZAC «Rive droite» Schéma d’aménagement urbain, Tautavel 66
Études Préliminaires de Voies Vertes en rives du Lez et de la Mosson (environ 70 km), Hérault 34
Extension de la zone artisanale, Gruissan-Plage 11
Mission d’accompagnement par un Paysagiste et un architecte conseil pour le Grand Site de France des Gorges de l’Hérault et les plaines et causses environnants, Hérault 34
Mission de paysagiste conseil et d’accompagnement pour la plantation d’ilôts viticoles dans le site classé des « gorges de la Cesse et du Brian et des causses de Minerve » , Cesseras, La Livinière et La Caunette 34
Projet global d’aménagement du cœur de village, Feuilla 11
Réaménagement de la traversée et la Place du Quai, Saint-Gervais-sur-Mare 34
Réfection de la terrasse du Musée en un « jardin extraordinaire », Narbonne 11
Rénovation Urbaine de la Cité Gély, Montpellier 34
Scénario de Développement du village de TERMES à 20 ans, Termes 11
Volet paysager pour un projet de parc éolien Murat-sur-Vèbre 81
Projet d’éco-accueil sur le site de la réserve naturelle du Bagnas, Agde 34
Aménagement de l’avenue J. Jaurès et de la place de la mairie, Peyriac-Minervois 11
Aménagement de la Place de Monseigneur de Langle, Saint-Papoul 11
Aménagement des espaces publics du Cœur de Ville, Marvejols 48
Aménagement du centre bourg, Fanjeaux 11
Aménagement du cœur de village dans le cadre du Village de caractère, Dourbies 30
Aménagement du parc municipal Saint Hubert, Juvignac 34
Étude de faisabilité urbaine, Félines-Minervois 11
Étude de requalification paysagère d’un parking au cœur du village de Mourèze, Mourèze 34
Études préalables pour l’aménagement de la cave coopérative et plan de référence du Centre Ville, Lunel-Viel 34
Études Préliminaires pour la réhabilitation du Jardin du Bosquet (Site Classé), Carnon 34
HABITER sans S’ETALER Étude de définition du Lotissement communal, Poilhes 34
Le Bois Bonvallet, Amiens 60
Le Parc de l’Aqueduc, Dardilly 69
Le parc de l’Aqueduc, Saint-Clément-de-Rivière 34
Le Paysage des arbres fruitiers, Roquefeuille 11
Projet d’éco-accueil sur le site de la réserve naturelle du Bagnas, Agde 34
Réaménagement de la mairie et de son parvis, Valros 34
Réaménagement de la Promenade, Quillan 11
Réaménagement des espaces publics de la traversée, Montbazin 34
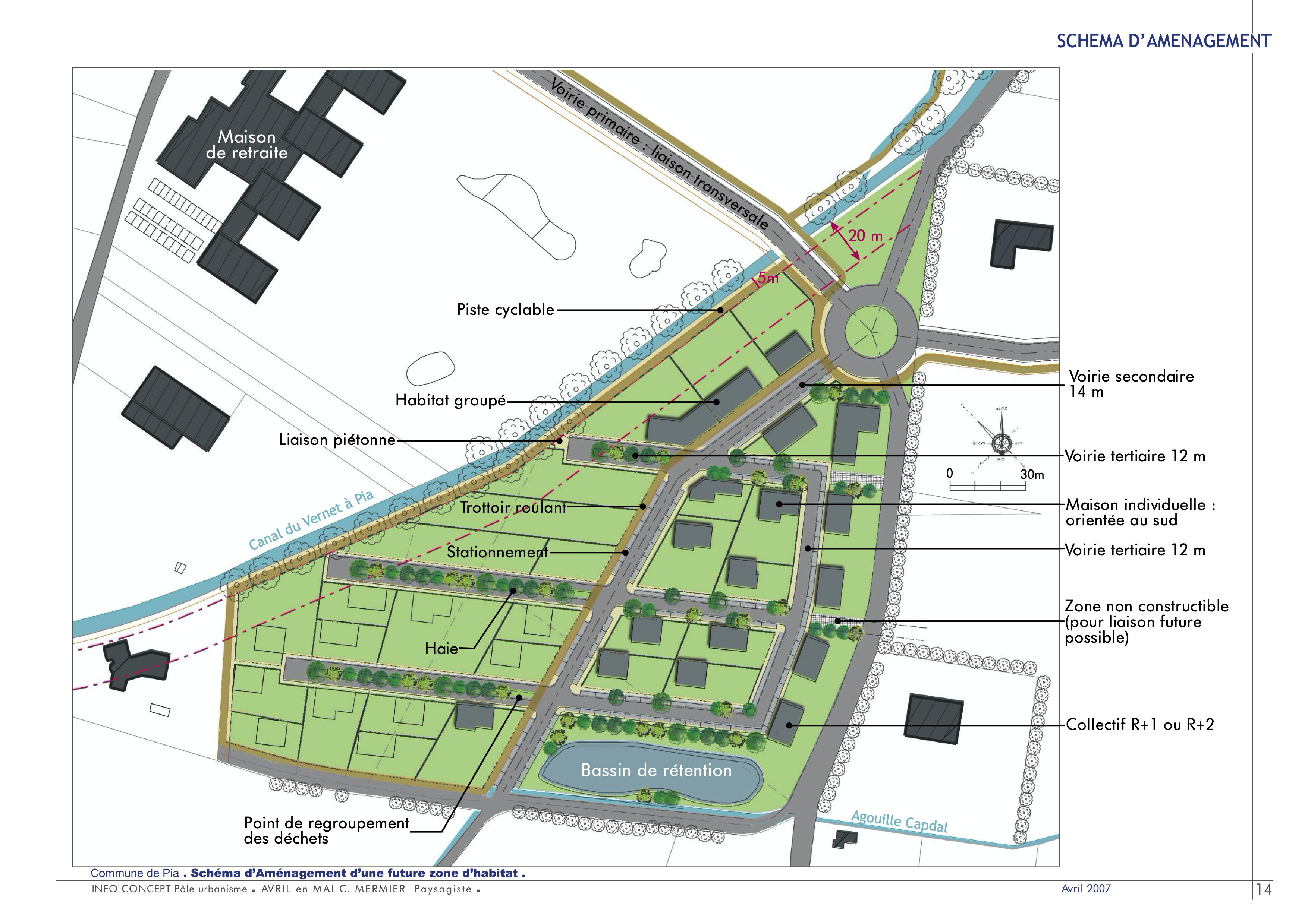
Schéma d’intention d’une zone d’habitat, Pia 66
V60 « Via Rhona » du Léman à la Mer Étude pré-opérationnelle de la section Lamotte du Rhône RN86 / Caderousse, Vaucluse 84
Valorisation des espaces publics du village Médiéval, Caunes-Minervois 11